CAPRA & GALBUSERA
                           CAPRA & GALBUSERA

PROGETTI

Progettazione del complesso residenziale REGINA MARGHERITA

MONZA, Via Volta

 

Opere svolte

  • Progetto architettonico ed esecutivo
  • Direzione dei lavori

Anno

2018

 

Budget

...

 

Descrizione

Il progetto si discosta dal linguaggio compositivo tipologico dell’intorno immediato, ma non da stravolgerne le caratteriste linguistiche del luogo, bensì valorizza i suoi aspetti più semplici attraverso la sua composizione architettonica sobria ma rigorosa, attraverso i materiali, quali pietre naturali e infine, ma non di minor importanza, le sottili gradazioni delle facciate. Con questa logica, finalizzata alla salvaguardia dell’identità storica dell’edificio, il recupero si muoverà verso l’impiego di strumenti diversi da quelli del passato, consentiranno di adeguare i livelli prestazionali dell’organismo edilizio all’attuale piano esigenziale e, nel contempo, saranno in grado di lasciare tracce visibili e discrete nella storia dell’edificio e di conseguenza del suo intorno. Nell’ambito di tali assunti, il riuso dell’edificio, rispettoso dei valori da salvaguardare, crea le condizioni storiche che riconducono al riconoscimento del manufatto.

Fotogallery:

Fotogallery cantiere

Progettazione del complesso residenziale VITTORIA

MONZA, Via Manara/Verita'

 

Opere svolte:

  • Progettazione architettonica e esecutivo
  • Direzione Lavori

 

Descrizione

La composizione delle facciate si presenterà sobria ma rigorosa; i riquadri a rilievo segnano le superfici di sottili gradazioni. L’essenzialità stilistica degli edifici sarà dettata oltre da precise scelte progettuali anche a sottolineare la semplicità degl’interni che ne caratterizza l’intero progetto

Anno

2016

 

Budget

...... 

 

Fotogallery:

Fotogallery cantiere:

IPOTESI PROGETTO RISTRUTTURAZIONE LICEO MAJORANA DESIO

DESIO, Via Gaetana Agnesi

Opere svolte:

  • Rendering ipotesi progetto 

 

 

 

 

 

 

Descrizione

 

Il Liceo Scientifico a Desio nasce nel 1969 come succursale del Liceo Frisi di Monza. Nel 1973 diventa Liceo autonomo e nel 1986 acquisisce la denominazione attuale. La sezione classica viene fondata nell’anno scolastico 1974-1975. Il Liceo è composto da due sedi denominate Sede 1 e Sede 2 di cui la Sede 1 è oggetto dell'intervento proposto.  

Lo spazio è definito attraverso la successione degli elementi d’arredo del cortile, intesi come definizione gerarchica delle esigenze funzionali in un unico spazio. La forma quadrata del cortile, segue regole e logiche dettate dalla funzionalità degli spazi in pianta e in alzato. La percezione dello spazio cambia dunque sulla base di un impianto semplice e chiaro. Ad esempio, l’ingresso principale scorre su una corsia posta lungo la parete esistente e ridefinisce il percorso verso l’effettivo ingresso all’edificio. Uno spirito minimale e razionale anima tutto il progetto e così il percorso funzionale che delinea la direzione...

 

Anno

2016

 

Budget

...... 

 

Ipotesi FERRARI STORE

MONZA, Viale Sicilia

 

Opere svolte:

  • Progettazione architettonica

 

 

 

 

Descrizione

L'area in oggetto di intervento, ubicata nel Comune di Monza, ha tutte le caratteristiche per lo sviluppo di una forma, che nella memoria collettiva, ricorda il circuito Monzese... L'intervento è finalizzato all'utilizzo dei più moderni sistemi di risparmio energetico, in grado di convertire l'energia solare in energia elettrica mediante effetto fotovoltaico, attraverso pannelli preassemblati e applicati sulle pareti perimetrali della struttura esterna, in colore rosso Ferrari. Il sistema geotermico sarà un ulteriore fonte di risparmio energetico, garantendo sia il riscaldamento sia il raffrescamento dell'intervento. L'edificio è progettato per essere individuato di giorno e di notte, attraverso una particolare lilluminazione, che partendo dai pannelli si svilupperà fino al logo della più famosa casa automobilistica Italiana di auto sportive.  

 

 

Anno

2014

 

Budget

...... 

 

Fotogallery:

PROGETTO Ristrutturazione "Ex Arosio Pra"

LISSONE, Via Matteotti

Opere svolte:

  • Progettazione architettonica e esecutivo
  • Direzione Lavori

 

 

 

 

 

 

 

Descrizione

L'edificio oggetto dell'intervento riporta la testimonianza  della presenza  di  un numero di  falegnami superiori alle esigenze della  zona sin dal XVII secolo, sembrerebbe attendibile  collocare il punto di svolta  attorno agli anni ottanta dell’Ottocento.

Consultando ad esempio un elenco del 1892 degli elettori per la Camera di commercio di Milano risultano presenti a Lissone circa 180 fabbricanti di mobili per i quali, quindi, l’attività artigianale era esclusiva e continuativa tra cui spiccano anche otto persone registrate come «industriali» del mobile.

 

Il dopoguerra determinò un periodo di forte crescita del settore mobiliero nazionale, legato alle esigenze della ricostruzione delle abitazioni, al soddisfacimento di bisogni a lungo differiti e alla formazione di nuove famiglie, una di queste  erano gli Arosio specializzati nella realizzazione di cucine, per la prima volta realizzate a livello industriale e non artigianale.

 

Anno

2006

 

Budget

...... 

Fotogallery:

PROGETTO Ristrutturazione edilizia Showroom Perego

LISSONE, Via Nuova valassina

Opere svolte:

  • Progettazione architettonica e esecutivo
  • Direzione Lavori

 

 

 

 

 

 

Descrizione

Lo Showroom di proprietà della famiglia Perego, maestri ebanisti in brianza,  "Martin careta" il soprannome della stessa famiglia , i committenti dell'intervento. Così si usava nella notte dei tempi e ancora prima nella famiglia si parlava di mobili. Un denominatore comune che li associa ai loro nonni, la passione per questo lavoro e la consapevolezza che il valore più importante delle loro attività è l'attenzione rivolta al cliente.  Da 4 generazioni si occupano di mobili: mettendo a disposizione del cliente tutta la loro passione e competenza nella scelta dei prodotti. Lo Showroom tratta le migliori firme del design come MOLTENI & C, DADA, VITRA, FLOU, FLEXFORM, RIMADESIO, CITTERIO, DESALTO, FIAM, FLOS, NATEVO, KASTHALL, POLTRONA FRAU e tante altre...

 

Anno

2006

Budget

...... 

 

Fotogallery:

PROGETTO Ristrutturazione uffici Avv. Novellini

MILANO, Via Macchi, Boscovich

Opere svolte:

  • Progettazione architettonica e esecutivo
  • Direzione Lavori

 

Anno

2005

 

Budget

...... 

 

Fotogallery:

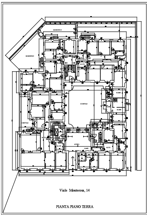
PROGETTO Intervento Ristrutturazione edilizia 

MILANO, Via Monte Rosa

Opere svolte:

  • Progettazione architettonica e esecutivo
  • Direzione Lavori

 

Anno

2003

 

Budget

...... 

 

Fotogallery:

PROGETTO Ristrutturazione edilizia "Villa Sempreverde"

MOLTRASIO

Opere svolte:

  • Progettazione architettonica e esecutivo
  • Direzione Lavori

 

Anno

2003

 

Budget

...... 

 

Fotogallery:

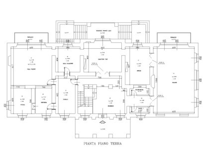
PROGETTO Ristrutturazione edilizia - Piano di Recupero- "Corte Ravizza"

ARCORE, Via Monte Grappa

Opere svolte:

  • Progettazione architettonica e esecutivo
  • Direzione Lavori

 

 

 

 

 

 

 

 

 

Descrizione:

 

L'edificio è situato nel contesto storico di arcore nei pressi del giardino del parco di Villa Borromeo e Villa Ravizza. Il giardino di quest'ultima fu creato nei primissimi decenni del XX secolo da Mansueto Ravizza con l'aiuto dell'arch. Ludovico Belgioioso, probabilmente quando furono unificate in una unica villa alcuni fabbricati di epoca eclettica e a questa, pur circondata da un dignitoso giardino, si volle collegare la collinetta retrostante, adiacente il parco Borromeo e separata da una via pubblica. Fu un intervento paesistico sullo stile di quelli settecenteschi per la sua grandiosità. Il raccordo tra casa e giardino avviene da un ponte che corre lungi il primo piano della villa e che si allarga a terrazza e sfocia nella scenografica scalinata a tenaglia che si alza per tre rampe successive fino alla sommità della breve e ripida collinetta.

 

Anno

2002

 

Budget

...... 

 

Fotogallery:

PROGETTO Ristrutturazione edilizia - Piano di Recupero- "Ex deposito carrozze"

ARCORE, Via Monte Grappa

Opere svolte:

  • Progettazione architettonica e esecutivo
  • Direzione Lavori

 

Anno

2004

 

Budget

...... 

 

Fotogallery:

PROGETTO Ristrutturazione edilizia

MONZA Via Volta

Opere svolte:

  • Progettazione architettonica e esecutivo
  • Direzione Lavori

 

Anno

2023

 

Budget

...... 

 

Fotogallery:

PROGETTO

Opere svolte:

  • Progettazione architettonica e esecutivo
  • Direzione Lavori

 

Anno

2012

 

Budget

...... 

 

Fotogallery:

PROGETTO

PROGETTO

Opere svolte:

  • Progettazione architettonica e esecutivo
  • Direzione Lavori

 

Anno

2012

 

Budget

...... 

 

Fotogallery:

Fotogallery:

Stampa | Mappa del sito
© Arch. Capra Carlo Monte Grappa 33 Arcore(MB) 20862